Espace propriétaire
fr

Votre recherche

Vendu
La Grande-Motte (34280)

2 pièces - 31 m²

LA GRANDE MOTTE - 2 PIECES CABINE AVEC GARAGE

Ref : 1485b
A propos de ce bien

VENDU - EXCLUSIVITÉ – APPARTEMENT 2 PIÈCES CABINE – LA MOTTE DU COUCHANT

À seulement 300 mètres de la plage, dans le quartier recherché de La Motte du Couchant, découvrez ce charmant T2 cabine en angle situé en rez-de-jardin surélevé.

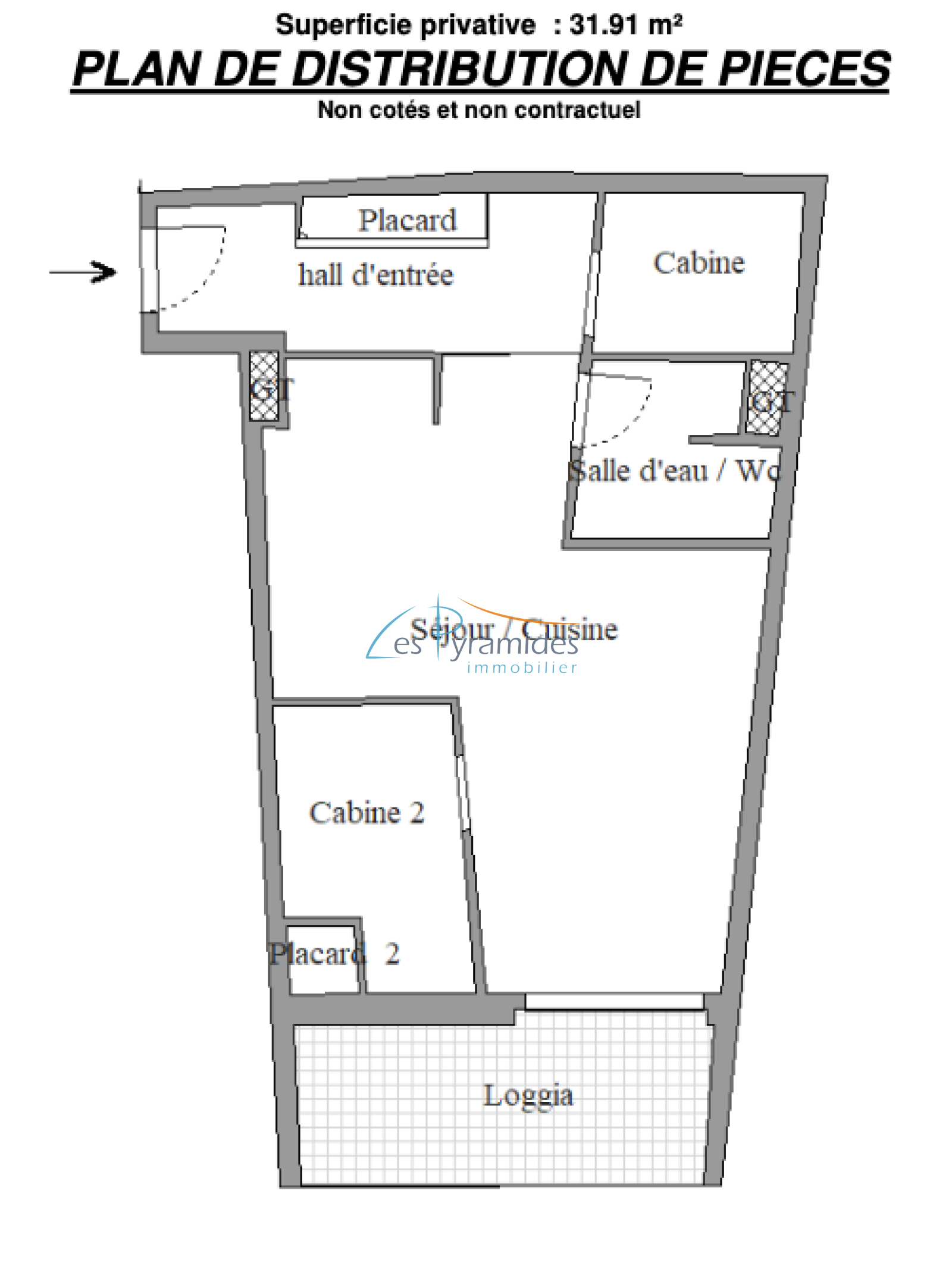
Superficie : environ 32 m²
Extérieurs : une loggia vitrée de 6 m², prolongée par une spacieuse terrasse ensoleillée de 15 m² orientée Sud-Ouest

Agencement fonctionnel :
- Entrée avec placards
- Espace cabine avec lits superposés et fenêtre
- Salle d'eau avec toilettes et fenêtre
- Pièce principale avec cuisine équipée, salon / salle à manger ouvrant sur la loggia vitrée de 6 m2
- Espace nuit indépendant avec placard, fenêtre et lit double

Résidence récemment ravalée et bien entretenue

Capacité d'accueil : jusqu'à 6 couchages

Atout supplémentaire : vendu avec un garage privatif de 3m x 5m

Emplacement idéal pour une résidence principale, secondaire ou un investissement locatif !

Les informations sur les risques auxquels ce bien est exposé sont disponibles sur le site Géorisques : www.georisques.gouv.fr

Notre agence immobilière se tient à votre disposition pour tout achat, vente, location ou estimation d'appartement, de maison ou villa sur La Grande Motte. LES PYRAMIDES IMMOBILIER - 277 ave Robert Fages - CC Le Miramar. Estimations gratuites et sans engagement.

Descriptif de ce bien
Général
Code postal 34280
Surface loi Carrez (m²) 31,91 m²
Nombre de chambre(s) 1
Nombre de pièces 2
Nombre de niveaux 1
Ascenseur NON
Vue Jardins
Détails
Nb de salle d'eau 1
Cuisine Américaine
Type de cuisine Equipée
Mode de chauffage Electrique
Type de chauffage Convecteur
Format de chauffage Individuel
Terrasse OUI
Murs mitoyens 2
Nombre de garage 1
Exposition Sud-Ouest
Quartier Couchant
Financier
Charges 105 €
Taxe foncière annuelle 847 €
Energie
DPE GES
Contacter pour ce bien
L'agence
Téléphone 04 67 56 71 50
Adresse
277 Avenue Robert Fages 34280 La Grande-Motte

* Champ obligatoire

Les informations recueillies sur ce formulaire sont enregistrées dans un fichier informatisé par La Boite Immo agissant comme Sous-traitant du traitement pour la gestion de la clientèle/prospects de l'Agence / du Réseau qui reste Responsable du Traitement de vos Données personnelles. La base légale du traitement repose sur l'intérêt légitime de l'Agence / du Réseau. Elles sont conservées jusqu'à demande de suppression et sont destinées à l'Agence / au Réseau. Conformément à la loi « informatique et libertés », vous disposez des droits d’accès, de rectification, d’effacement, d’opposition, de limitation et de portabilité de vos données. Vous pouvez retirer votre consentement à tout moment en contactant directement l’Agence / Le Réseau. Consultez le site https://cnil.fr/fr pour plus d’informations sur vos droits. Si vous estimez, après avoir contacté l'Agence / le Réseau, que vos droits « Informatique et Libertés » ne sont pas respectés, vous pouvez adresser une réclamation à la CNIL. Nous vous informons de l’existence de la liste d'opposition au démarchage téléphonique « Bloctel », sur laquelle vous pouvez vous inscrire ici : https://www.bloctel.gouv.fr Dans le cadre de la protection des Données personnelles, nous vous invitons à ne pas inscrire de Données sensibles dans le champ de saisie libre.
Ce site est protégé par reCAPTCHA, les Politiques de Confidentialité et les Conditions d'Utilisation de Google s'appliquent.

Découvrir nos outils