Espace propriétaire
fr

Votre recherche

La Grande-Motte (34280)

4 pièces - 77 m²

LA GRANDE MOTTE : P4 CENTRE VILLE AVEC CAVE

245 000 €
Ref : 1558
A propos de ce bien

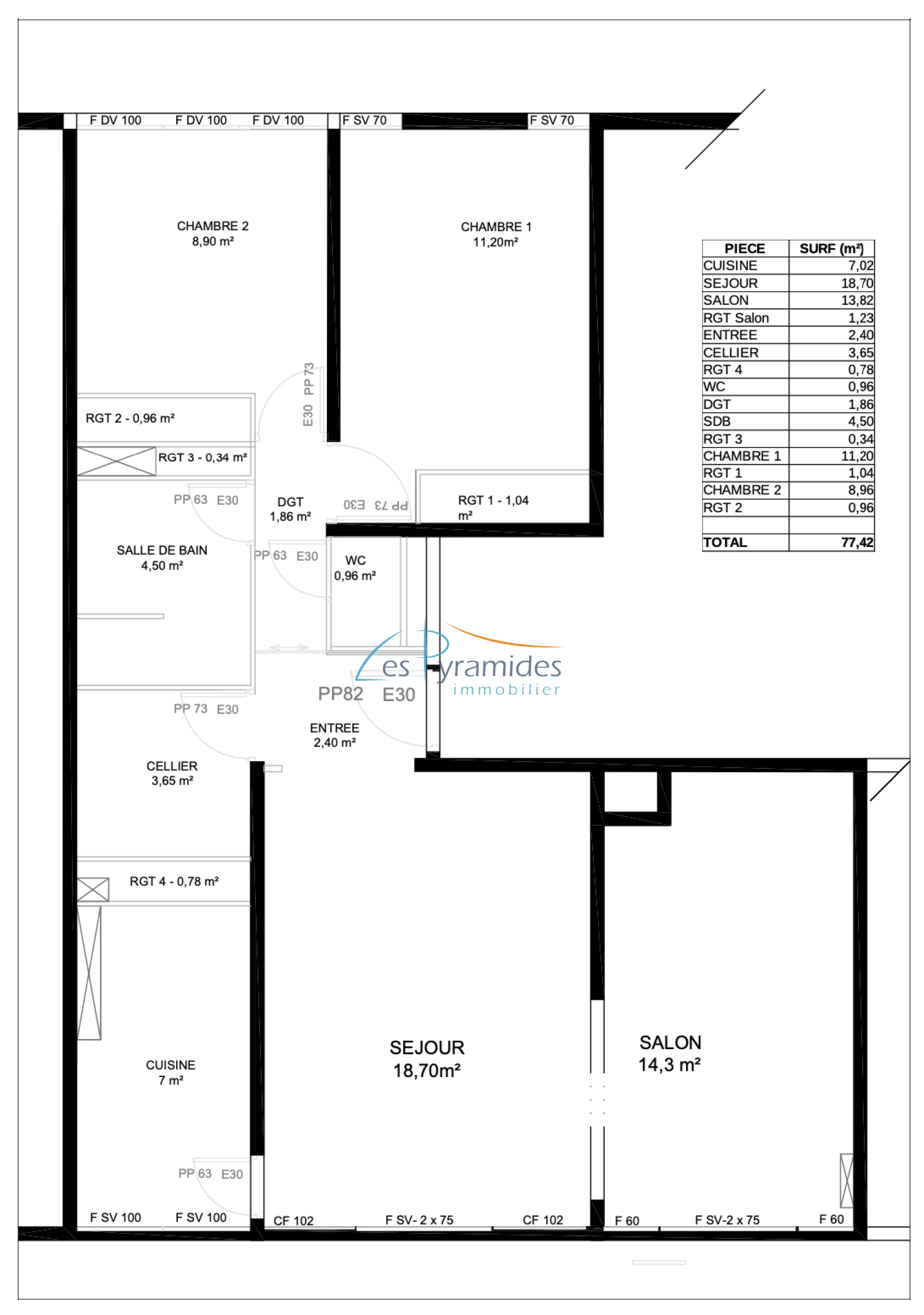
À vendre à La Grande Motte, en plein cœur du centre-ville, cet appartement de 4 pièces d'environ 77 m² au 1er étage offre un cadre de vie idéal. Sans ascenseur, l'appartement bénéficie d'une situation privilégiée à proximité des commerces, crèche, écoles maternelle et primaire, dans un environnement calme.

Caractéristiques Principales :

  • Surface : 77 m²
  • Étage : 1er étage (sans ascenseur)
  • Chambres : 2 chambres + 1 salon (ou 3ème chambre)
  • Cuisine : Séparée et équipée
  • Salle d'eau : 1
  • Toilettes : Séparés
  • Buanderie : Oui, avec placard
  • Double Vitrage : Oui (dans tout l'appartement)
  • Volets Roulants : Électriques (dans les chambres)
  • Chauffage : Collectif (inclus dans les charges)

L'appartement comprend une entrée, un séjour, un salon pouvant servir de 3ème chambre, une cuisine séparée et entièrement équipée, une buanderie pratique avec placard, une salle d'eau avec placard, des toilettes séparés et deux chambres avec placard.

Points Forts :

  • Emplacement Stratégique : Proche des commerces, crèche, écoles maternelle et primaire.
  • Environnement Calme : Idéal en centre-ville.
  • Equipement : Double vitrage, volets roulants électriques.
  • Potentiel Résidentiel ou Locatif : Convient parfaitement comme résidence principale ou pour un investissement locatif rentable.
  • Cave : incluse dans la vente

Les informations sur les risques auxquels ce bien est exposé sont disponibles sur le site Géorisques : www. georisques. gouv. fr

Notre agence immobilière se tient à votre disposition pour tout achat, vente, location ou estimation d'appartement, de maison ou villa sur La Grande Motte. LES PYRAMIDES IMMOBILIER - 277 ave Robert Fages - CC Le Miramar. Estimations gratuites et sans engagement.

Descriptif de ce bien
Général
Code postal 34280
Surface habitable (m²) 77 m²
Surface loi Carrez (m²) 77 m²
Nombre de chambre(s) 2
Nombre de pièces 4
Etage 1
Nombre de niveaux 1
Ascenseur NON
Détails
Nb de salle d'eau 1
Cuisine Séparée
Type de cuisine Equipée
Mode de chauffage Autre
Type de chauffage Autre
Format de chauffage Collectif
Balcon NON
Terrasse NON
Cave OUI
Surface cave (m²) 4
Exposition Sud
Quartier Centre Ville
Financier
Prix de vente honoraires TTC inclus 245 000 €
Prix de vente honoraires TTC exclus 235 000 €
Honoraires TTC à la charge acquéreur 4,26 %
Charges 141 €
Taxe foncière annuelle 1 371 €
Energie
DPE GES
Contacter pour ce bien
L'agence
Téléphone 04 67 56 71 50
Adresse
277 Avenue Robert Fages 34280 La Grande-Motte

* Champ obligatoire

Les informations recueillies sur ce formulaire sont enregistrées dans un fichier informatisé par La Boite Immo agissant comme Sous-traitant du traitement pour la gestion de la clientèle/prospects de l'Agence / du Réseau qui reste Responsable du Traitement de vos Données personnelles.
La base légale du traitement repose sur l’intérêt légitime de l'Agence / du Réseau.
Elles sont conservées jusqu'à demande de suppression et sont destinées à l'Agence / au Réseau.
Conformément à la loi « informatique et libertés », vous pouvez exercer votre droit d'accès aux données vous concernant et les faire rectifier en contactant l'Agence / le Réseau.
Si vous estimez, après avoir contacté l'Agence / le Réseau, que vos droits « Informatique et Libertés » ne sont pas respectés, vous pouvez adresser une réclamation à la CNIL.
Nous vous informons de l’existence de la liste d'opposition au démarchage téléphonique « Bloctel », sur laquelle vous pouvez vous inscrire ici : https://www.bloctel.gouv.fr 
Dans le cadre de la protection des Données personnelles, nous vous invitons à ne pas inscrire de Données sensibles dans le champ de saisie libre
Ce site est protégé par reCAPTCHA, les Politiques de Confidentialité et les Conditions d'Utilisation de Google s'appliquent.

Découvrir nos outils